Shakopee City Council Recognizes Public Safety Achievements and Reviews Bluff View Development

By Carter McNew
At its February 18 meeting, the Shakopee City Council recognized outstanding contributions from local public safety officials and debated concerns over the Bluff View Planned Unit Development (PUD) project.
Honoring the 2024 Police Officer of the Year
Officer Seth Perrier was awarded the 2024 Police Officer of the Year. Perrier, who joined the Shakopee Police Department in April 2022, was nominated for the award five separate times this year.
Police Chief Jeff Tate commended Perrier's proactive work, noting an award he received from the Department of Public Safety in 2024 for a significant stop and investigation. He also emphasized Perrier's commitment to treating everyone with dignity and respect.
Fire Department Leadership Recognized

The council also acknowledged the achievements of Captain Tim Nordstrom of the Shakopee Fire Department, who received the Minnesota Division of Homeland Security and Emergency Management (HSEM) Emergency Management Director Certification.
Earning this certification required approximately 1,000 hours of additional training and work, completed alongside Nordstrom’s standard duties. This milestone is particularly significant as Shakopee transitions its emergency management responsibilities from the Police Department to the Fire Department.
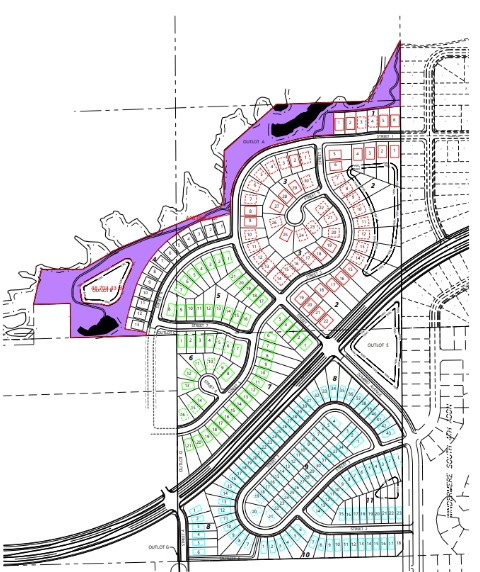
Bluff View PUD Development Decision Delayed
The council deliberated over the proposed amendment to Bluff View Planned Unit Development (PUD) project, ultimately deciding to table the discussion until the March 4 meeting at 7:00 p.m.
Council Member Jay Whiting requested to remove the project from the consent agenda, voicing concerns over the limited space allocated for public use. Whiting noted that the current plan deviates from the original agreement, making it difficult for him to support the project in its present form.
Council Member Jesse Lara also raised concerns about the affordability of the homes in the development. According to the developer, homes in the project will range from $400,000 for a 1,550-square-foot single-stall garage unit to homes priced as high as $700,000.
Given these concerns over the project, the council opted to table issue until the next council meeting to allow time to collect additional feedback.
The next Shakopee City Council meeting is scheduled for March 4 at 7:00 p.m.


